Warehouse Modernization for Tractor-Trailer Compatibility: Older warehouses require updating to accommodate today’s larger tractor-trailers. With a redesign and modernization, these renovated warehouses can improve operational efficiency. The renovations have the potential of accelerating the flow of goods in and out of the warehouse, streamlining the logistics to improve the revenue potential of the facility.

The design process begins with a Feasibility Study for options prior to moving forward with one concept.

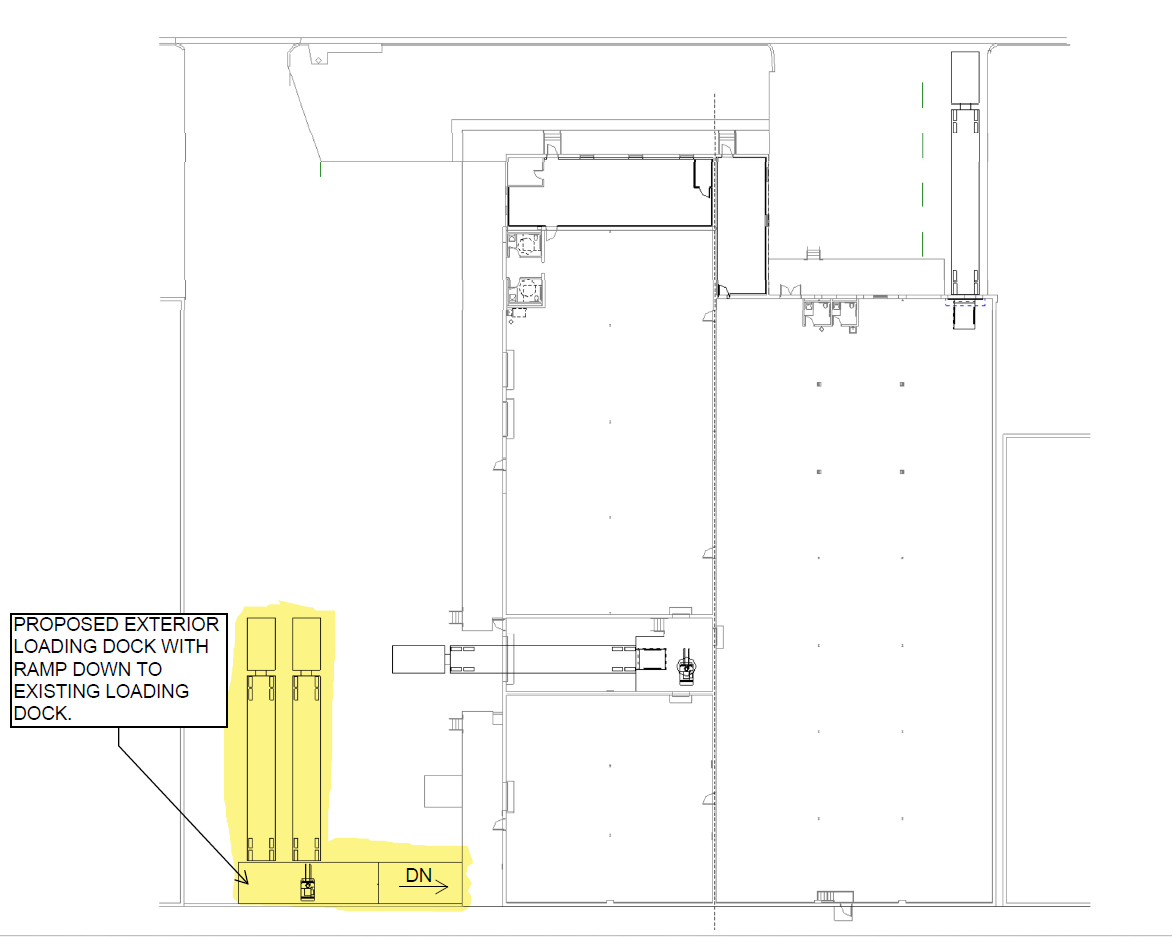
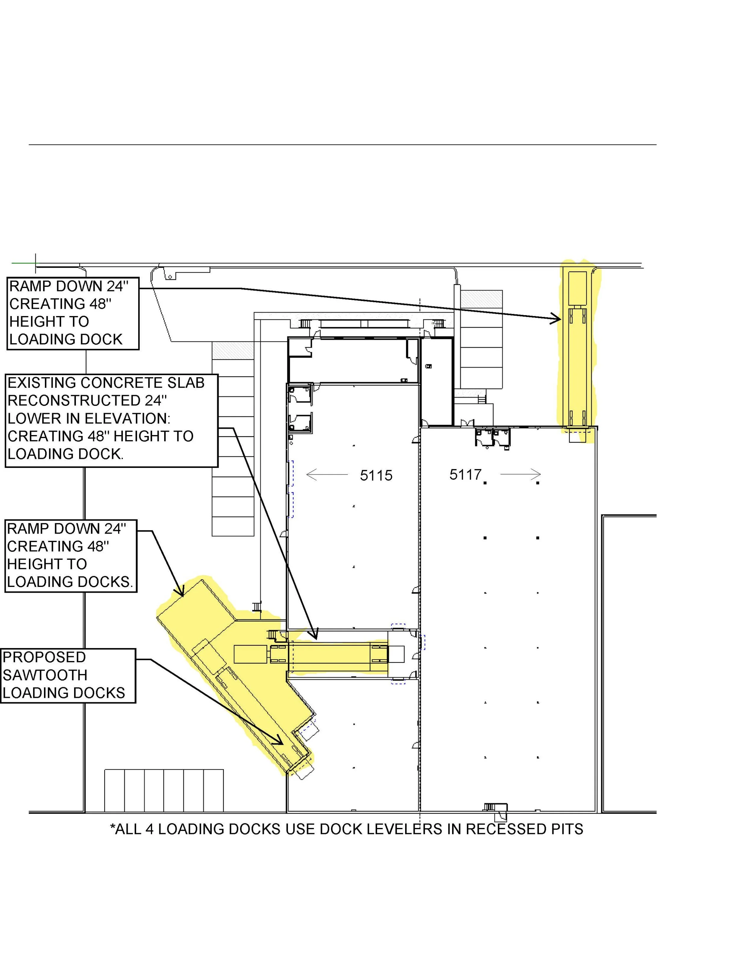
Review options for tractor trailer vehicle access and loading dock options for each area.

  • Consider direct loading dock vs. sawtooth configurations.

  • Height of the loading dock needs to be taken into account or renovated.

Equipment required to unload the trucks need to be considered based on:

  • Cost of equipment.

  • Logistics in terms of unloading and loading efficiencies.

  • Mechanical vs. electric dock levelers.

  • Shelving rack systems.